四柱型油氣分離氣液壓力機
- 作動方式:雙動
作動條件:4~7kg/cm2
液壓抗魔油:VG68#抗磨液壓油
工作溫度:0~60℃
電源:220V
氣缸耐壓:12kg/cm2
行程公差:+0.20mm 0.00mm
運行速度:25-45次/min
控制辦法:電控、氣控、手控、腳控
玖容廠家直銷,價格從優,可非標定制!
四柱型油氣分離氣液壓力機控制簡單易維護,目前在壓裝、壓入、沖孔、裝配、切斷、鉚接鉚合、折彎等精密要求場合應用廣泛。出力大于普通氣動沖床,速度高出液壓沖床,PLC編程全自動控制,采用氣液增壓技術,出力大,出力行程均可調,速度快,傳動穩定,獨特軟著陸不損模具,低噪音,功耗小效率高,節能環保。
玖容氣液壓力機設備以質量著稱,專業非標定制設備廠家!密封件采用進口品牌組合件,英國HALLIET進口油封和日本NOK進口氣封。解決了氣液增壓設備漏油的一大難題,出力大,比實際購買噸位出力要大;工作頻率快,比普通氣液壓力機速度要快30%,精度高,做工精細,適合高精度產品成型作業。玖容氣液壓力機當屬臺灣增壓設備品牌的典范!贏得廣大客戶的好評,30年來,以客戶第一的宗旨。
【四柱型油氣分離氣液壓力機操作條件】:
|
作動方式:雙動 作動條件:4~7kg/cm2 液壓抗魔油:VG68#抗磨液壓油 工作溫度:0~60℃ 電源:220V 氣缸耐壓:12kg/cm2 行程公差:+0.20mm 0.00mm 運行速度:25-45次/min 控制辦法:電控、氣控、手控、腳控 |
|
【四柱型油氣分離氣液壓力機產品特點】:
1、以壓縮空氣作為動力源,操作維護簡單。
2、電力消耗低,無噪音。
3、作動產品為油氣分離氣液增壓器,利用空油結合增壓的原理:動作速度快速、平穩、出力大。
4、多功能產品,如遇特殊工作場合,預壓及增壓出力均可調整;可適用于:裝配、沖孔、壓入、鉚合、切斷等工作場合。
5、整體結構堅固、穩定、操作容易,上下料方便,能實現效率雙收效果。
6、此四柱型氣液壓力機可接受特殊規格訂制(需提供噸位/行程/類型/工作臺面積/裝潢高度/配件及控制要求等)400-833-2669。
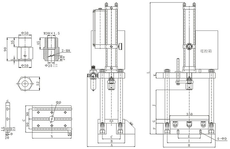
【四柱型油氣分離氣液壓力機外形尺寸表】:
【四柱型油氣分離氣液壓力機外形圖】:
注:設計圖僅僅是舉例,因為不同規格產品外形尺寸有所差異,具體設計圖會在下單時由我司技術給出。玖容氣動液壓設備廠家,到目前為止,已為3000多家企業進行了針對性的產品定制服務,歡迎廣大新老客戶選型報價:400-833-2669。
【四柱型油氣分離氣液壓力機操作注意事項】:
1、在選型時,世紀出力約為理論出力的80%,并需要考慮廠內壓力源之壓力值大小(我司產品理論出力以6kg/cm2壓縮空氣計算)。
2、接上空壓源時,請將使用之配管清潔,除去其中的水分及沙塵等雜物。
3、氣液增壓缸所采用液壓油為ISOVG-68#抗磨液壓油,當液壓油出現乳化現象或者使用半年后應更換液壓油;加油時應注意:注入油量。
4、注意三點組合之排水功能是否正常,若失效,則用手動方式定時排水或更換新產品。
5、停機未工作時應將機臺壓力釋放及切斷電源,減少消耗能源及延長產品壽命。
- *聯系人:
- *手機:
- 公司名稱:
- 郵箱:
- *采購意向:
-
*驗證碼:




